Вопрос знатокам:
Не каждый раз срабатывает стартер при повороте ключа или при попытке автозапуска с сигналки. При этом под торпедо что- то щёлкает.
Стартер перебран, втягивающее новое. Силовые провода заменены на новые, все клеммы зачищены и смазаны.
Грешу на реле стартера. Или что ещё ещёможет быть?
Где находится реле стартера Forester SF5, америкос.
8-90Ч-б10-79-0б
- Piligrim
- Администратор
- Октябрь 2005 / 9126
- Авто: UAZ Patriot 2021MY, ранее Forester 2.0 STurbo 2001MY, ещё ранее Forester 2.0 1998MY
- Откуда: Питер
Re: Где находится реле стартера Forester SF5, америкос.
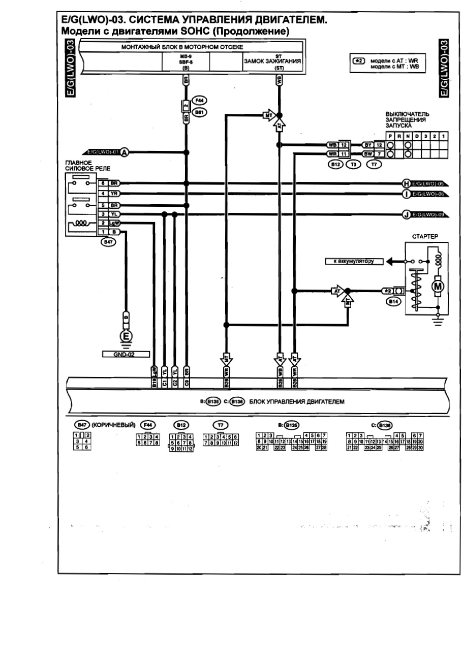
Да нету там реле. Прямо с замка на втягивающее.
АКПП поставить ЧЕТКО в "Р" или "N" потому как там еще разрыв цепи. (Защита от дурака)
АКПП поставить ЧЕТКО в "Р" или "N" потому как там еще разрыв цепи. (Защита от дурака)
Стабильного наддува тебе Субарист!
...нет ничего нового: все новое — это хорошо забытое старое!
...Пессимист - это хорошо информированный оптимист, а оптимист - хорошо инструктированный пессимист.
...не работаю в Созвездии с 01/01/2019, ушёл на пенсию.
...нет ничего нового: все новое — это хорошо забытое старое!
...Пессимист - это хорошо информированный оптимист, а оптимист - хорошо инструктированный пессимист.
...не работаю в Созвездии с 01/01/2019, ушёл на пенсию.
Re: Где находится реле стартера Forester SF5, америкос.
Алексей, не похоже на АКПП. Селектор я дёргал и в P и в N - это всё без толку.
Проблема плавающая: то может три раза подряд стартер начинает крутить, а то с 10-ой попытки только стартер работать начинает.
А если нет реле, то что тогда щёлкает под торпедо (судя по звуку - в районе чуть ниже левого девлектора обдува) когда ключ на старт поорачиваешь?
Проблема плавающая: то может три раза подряд стартер начинает крутить, а то с 10-ой попытки только стартер работать начинает.
А если нет реле, то что тогда щёлкает под торпедо (судя по звуку - в районе чуть ниже левого девлектора обдува) когда ключ на старт поорачиваешь?
8-90Ч-б10-79-0б
- Piligrim
- Администратор
- Октябрь 2005 / 9126
- Авто: UAZ Patriot 2021MY, ранее Forester 2.0 STurbo 2001MY, ещё ранее Forester 2.0 1998MY
- Откуда: Питер
Re: Где находится реле стартера Forester SF5, америкос.
Power писал(а):(судя по звуку - в районе чуть ниже левого девлектора обдува
дык там 3шт. реле на одной косынке к вертик стойке прикручено
1. Бензонасос (круглое + зеленый коннектор)
2. Главное реле (IG) (квадратное цвета кофе+мало сливок)
3. Реле климата/печки (круглое + розовый коннектор)

+ реле в блоке предов что за крышкой/монетницей
Стабильного наддува тебе Субарист!
...нет ничего нового: все новое — это хорошо забытое старое!
...Пессимист - это хорошо информированный оптимист, а оптимист - хорошо инструктированный пессимист.
...не работаю в Созвездии с 01/01/2019, ушёл на пенсию.
...нет ничего нового: все новое — это хорошо забытое старое!
...Пессимист - это хорошо информированный оптимист, а оптимист - хорошо инструктированный пессимист.
...не работаю в Созвездии с 01/01/2019, ушёл на пенсию.
- Piligrim
- Администратор
- Октябрь 2005 / 9126
- Авто: UAZ Patriot 2021MY, ранее Forester 2.0 STurbo 2001MY, ещё ранее Forester 2.0 1998MY
- Откуда: Питер
Re: Где находится реле стартера Forester SF5, америкос.
есть ещё одно засада с потенциалами - но это со вторника к Диагносту/Электрику
или сам замерь по точкам в цепи "ST" нужно получить значение как на батарее (аккумуляторе)
или сам замерь по точкам в цепи "ST" нужно получить значение как на батарее (аккумуляторе)
Стабильного наддува тебе Субарист!
...нет ничего нового: все новое — это хорошо забытое старое!
...Пессимист - это хорошо информированный оптимист, а оптимист - хорошо инструктированный пессимист.
...не работаю в Созвездии с 01/01/2019, ушёл на пенсию.
...нет ничего нового: все новое — это хорошо забытое старое!
...Пессимист - это хорошо информированный оптимист, а оптимист - хорошо инструктированный пессимист.
...не работаю в Созвездии с 01/01/2019, ушёл на пенсию.
Re: Где находится реле стартера Forester SF5, америкос.
Спасибо. Буду искать.
8-90Ч-б10-79-0б
Кто сейчас на конференции
Сейчас этот форум просматривают: нет зарегистрированных пользователей и 6 гостей
